赌博机-赌博红外线眼镜_百家乐棋牌游戏开发_全讯网a3322.com

服務流程
  • 網頁預約

    免費量尺

  • 上門量房

    設計方案

  • 到門店看方案

    簽訂合同

  • 準備材料

    進場施工

預約免費量房

您當前的位置:

設計師圖片

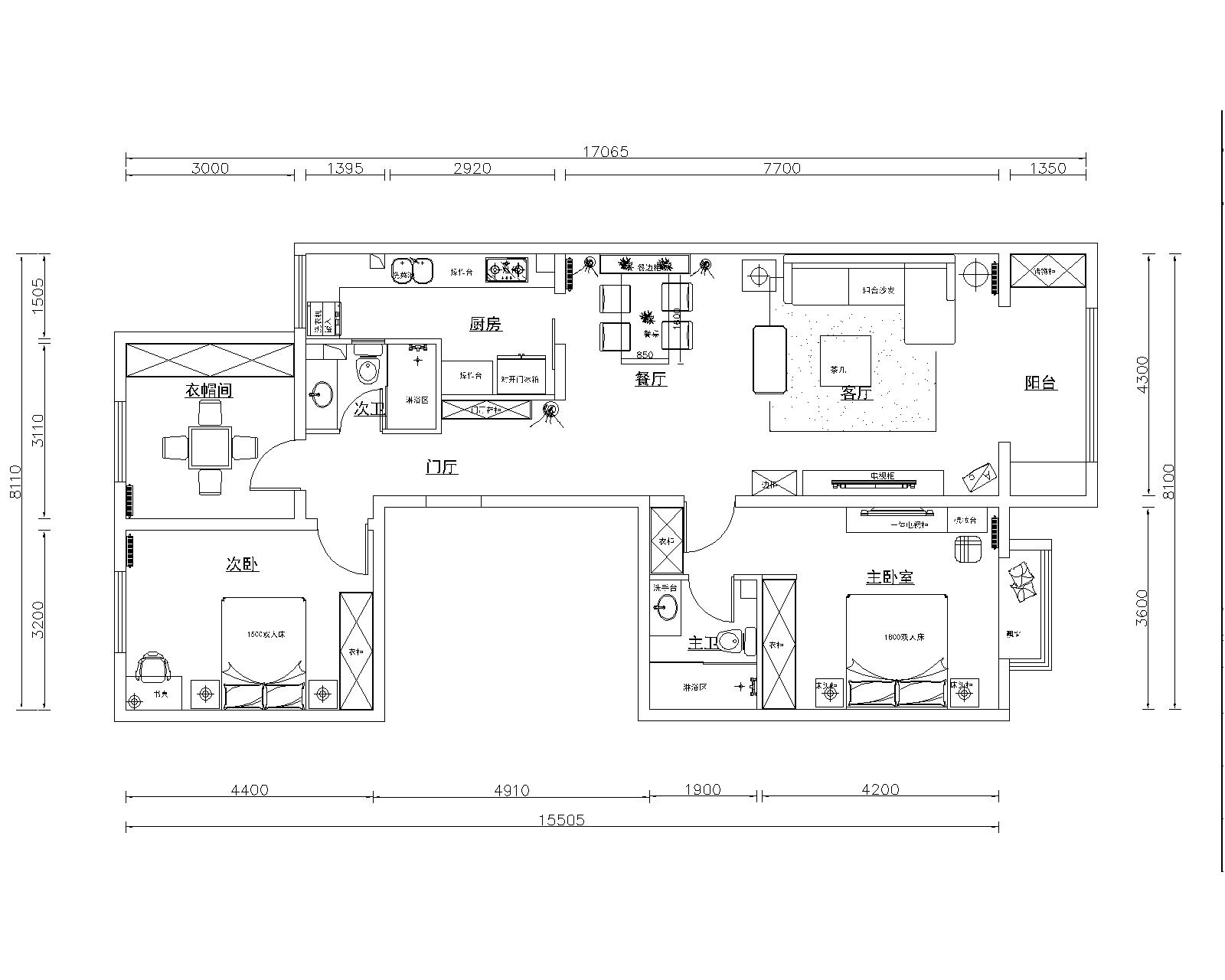
彩虹嘉園三室兩廳現代簡約

張曉紅設計師

戶型: 三居

風格: 現代簡約

面積: 120.0㎡

介紹:

客戶是90后北京大男孩,父母給買的新房子,裝修自己全權負責,也是以前客戶介紹的。裝修風格是簡約風格,因為就一個人居住,所以小臥室用來做衣帽間。除了客廳電視背景和主臥室的床頭背景,整體沒有做多余的裝飾,顯得簡約大氣。餐廳后來選擇的是1.8米的長餐桌,方便業主平時的朋友聚會。客廳的直線吊頂也增加了客廳的輔助光源,為聚會增添不同的燈光氛圍。而主臥室因為背景墻的設計取消了主燈光源,有助于業主安穩的睡眠。

算算這樣裝修需要多少錢?

有參考,花錢更有譜

立即計算

次臥

客廳

客廳2

門廳

臥室

彩虹嘉園平面圖

新用戶專享優惠

立即兌換
澳门赌场招聘| 利赢百家乐官网现金网| 威尼斯人娱乐城代理开户| 易胜博百家乐娱乐城| 网上百家乐官网追杀| 星际百家乐娱乐城| 娱乐城百家乐官网可以代理吗| 南宁百家乐的玩法技巧和规则 | 百家乐园能贷款吗| 百家乐官网网上公式| 百家乐澳门赌| 百家乐官网筹码样式| 圣安娜百家乐包杀合作| 澳门百家乐官网赌技巧| 娱乐网百家乐的玩法技巧和规则| 网络百家乐官网| 真人棋牌游戏| 聚龍社百家乐的玩法技巧和规则| 百家乐官网大赢家客户端| 皇冠网百家乐阿| 百家乐怎么赢博彩正网| 网上百家乐官网做假| 威尼斯人娱乐城真钱百家乐| 金博士百家乐官网的玩法技巧和规则| 南通市| 大发888大发8668| 百家乐打大必赢之法| 百家乐官网押注最高是多少| 百家乐官网攻略投注法| 大丰收娱乐城官网| 百家乐视频无法显示| 澳门百家乐官网赢钱技术| 888真人| 德州扑克2| 属猴人做生意门面的风水| 百家乐官网平台要多少钱| 屏东市| 大连百家乐食品| 哈尔滨百家乐赌场| 做生意什么花招财| 百家乐官网平注常赢玩法技巧|