赌博机-赌博红外线眼镜_百家乐棋牌游戏开发_全讯网a3322.com

服務流程
  • 網頁預約

    免費量尺

  • 上門量房

    設計方案

  • 到門店看方案

    簽訂合同

  • 準備材料

    進場施工

預約免費量房

您當前的位置:

設計師圖片

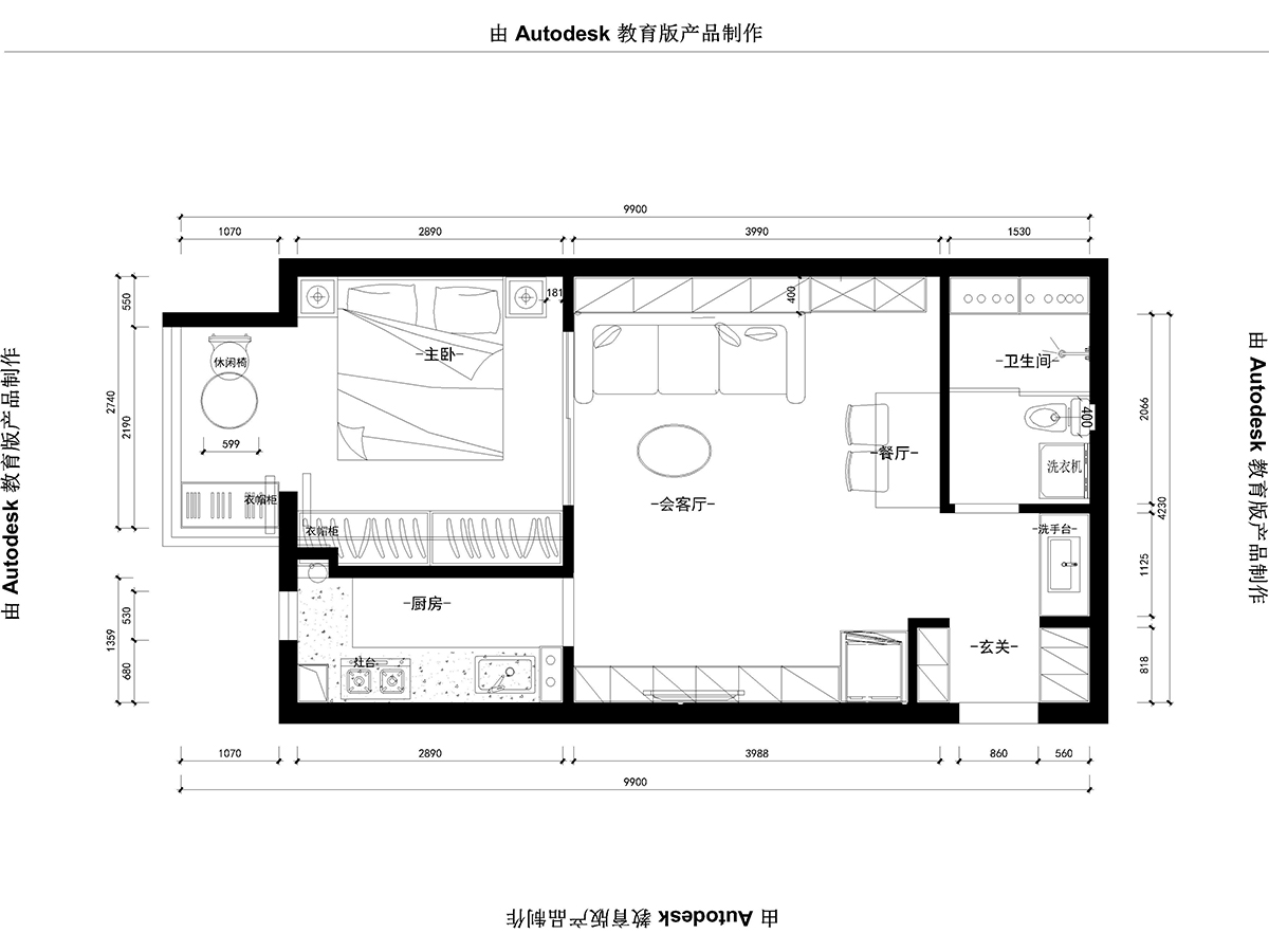
金尚嘉苑

劉春暉設計師

戶型: 一居

風格: 現代簡約

面積: 60.0㎡

介紹:

簡約風,白色調輕盈明快 ,空間更寬闊舒適玄關收納(鞋柜 包包 鑰匙 掛衣)玄關與干區相結合,既解放的外衛的空間客廳電視背景是一面裝飾柜,豐富了空間,增加了收納和儲物。美觀又實用。臥室和陽臺空間 閑暇時,喝杯茶看會書,感受美好的陽光。

算算這樣裝修需要多少錢?

有參考,花錢更有譜

立即計算

01

02

03

04

05

新用戶專享優惠

立即兌換
大发888赌场网址| 大发888官网 游戏| 百家乐官网开户最快的平台是哪家| 百家乐官网2号干扰| 金公主百家乐现金网| 大发888在线娱乐城二十一点| 温宿县| 百家乐官网下载游戏| 百家乐如何破解| 宁安市| 百家乐官网7人桌布| 恒丰百家乐的玩法技巧和规则 | 玩百家乐官网凤凰娱乐城| 百家乐官网五铺的缆是什么意思| 自贡百家乐官网赌场| 百家乐走势图解| 新澳博百家乐官网现金网| 欧洲百家乐官网的玩法技巧和规则| 百家乐官网qq游戏| 水果机游戏机| 百家乐官网书包| 现金网注册送彩金| 百家乐色子玩法| 百家乐官网怎么才赢| 大发888游戏技巧| 百家乐平的概率| 百家乐官网赢家公式| 太阳城王子酒店| 百家乐注册开户送现金| 娄烦县| 百家乐赢钱面面观| 百家乐官网平游戏| 百家乐官网注册送彩金平台| 皇冠娱乐城| 大发888线上| 蓝盾百家乐赌城| 百家乐稳中一注法| 百家乐官网国际娱乐场开户注册| 百家乐下路教学| Bet百家乐官网娱乐城| 高档百家乐官网桌|